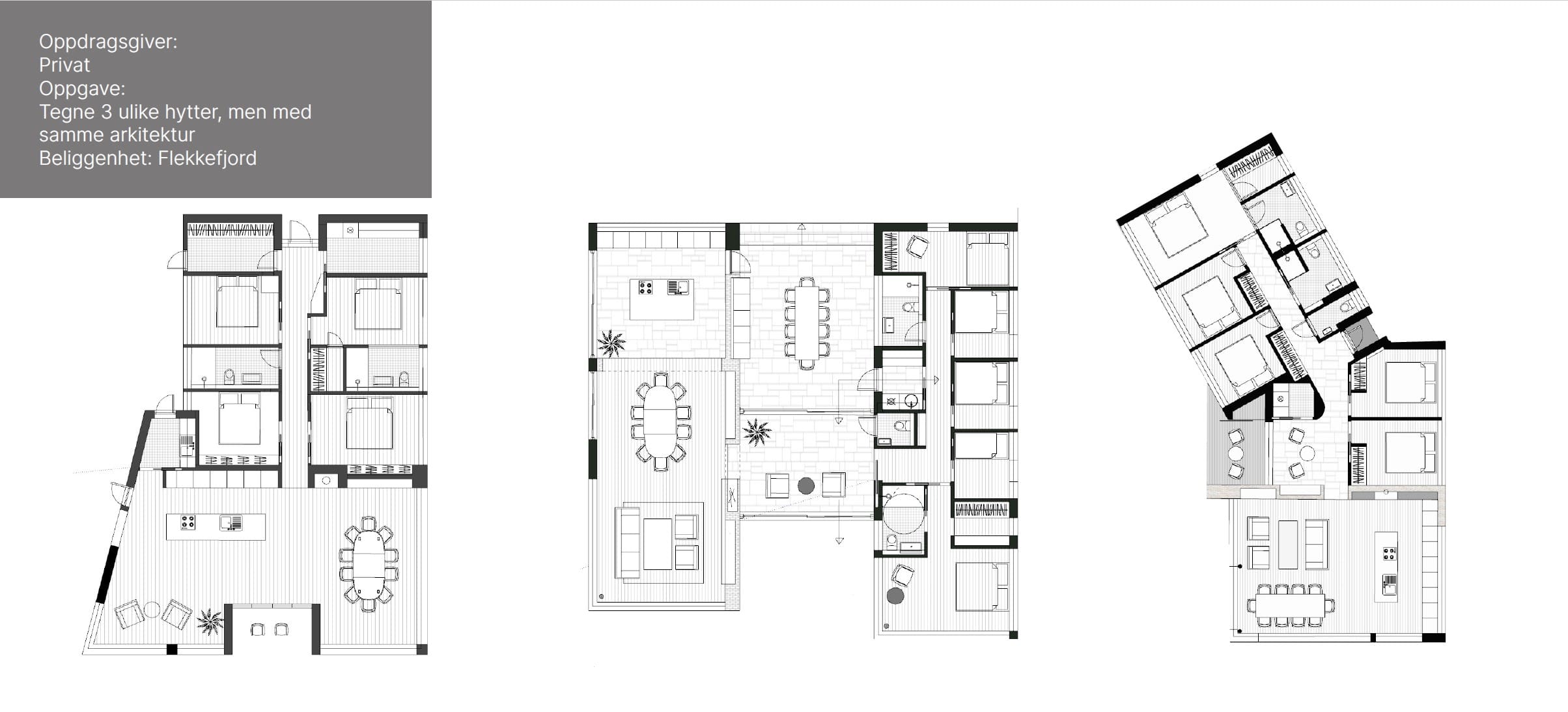
Alt henger sammen med alt.
Arkitektur, design og innhold må evne å snakke sammen.
Helheten er kompromissløs.
Våre tjenester
Om oss
Alt henger sammen med alt.
Arkitektur, design og innhold er kraftfulle verktøy når identitet og opplevelser skal formes. Sammen med våre oppdragsgivere skapes løsninger som er forankret i visjon og verdier. Trivsel og prestasjon for enhver organisasjon er et resultat av en felles forståelse for hva som skal til for inspirasjon, ytelse og resultat.
Arkitektur, design og kunst har en egen evne til å samle mennesket og mennesker.


